УЗНАТЬ СТОИМОСТЬ
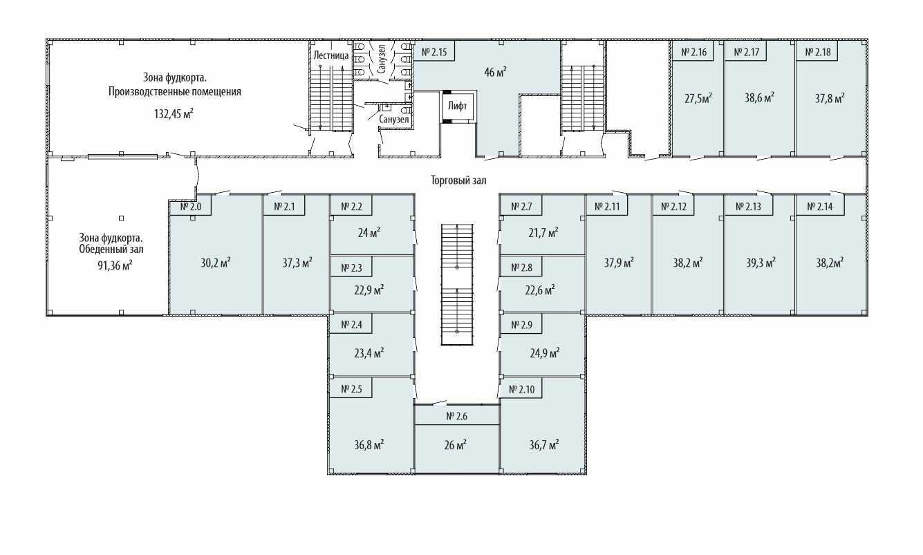
ВТОРОЙ ЭТАЖ
Made on
Tilda